
Макс. температура (Т) °С.: до +200 °С
Мин. температура (Т) °С.: до -40 °С (исп. У), до -60 °С (исп. ХЛ)
Класс герметичности: Класс «А» ГОСТ Р54808-2011
Срок службы: Не менее 25 лет
Гарантийный срок: 3 года или не менее 10 000 циклов
Материалы корпуса: Сталь 20/09Г2С/12Х18Н10Т
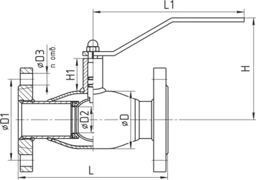
| Артикул | DN | PN | L | L1 | H | H1 | D | D1 | D2 | D3 | n отв. | Вес,кг. | |
|---|---|---|---|---|---|---|---|---|---|---|---|---|---|
| 29420065 | 65 | 25 | 270 | 276 | 172,5 | 57 | 114 | 145 | 63 | 18 | 8 | 10,95 | |
| 29420080 | 80 | 25 | 290 | 276 | 182 | 57 | 133 | 160 | 75 | 18 | 8 | 17,70 | |
| 29420100 | 100 | 25 | 350 | 525 | 187 | 50 | 180 | 190 | 100 | 22 | 8 | 24,84 | |
| 29420125 | 125 | 25 | 380 | 525 | 203 | 48 | 219 | 220 | 125 | 26 | 8 | 44,60 | |
| 29420150 | 150 | 25 | 410 | 525 | 228 | 45 | 273 | 250 | 148 | 26 | 8 | 61,04 | |
| 29420200 | 200 | 25 | 530 | 1030 | 273 | 51 | 351 | 310 | 200 | 26 | 12 | 92,54 | |
| 29420250 | 250 | 25 | 750 | - | 414 | 101 | 426 | 370 | 240 | 30 | 12 | 147,0 | |
| 29420300 | 300 | 25 | 750 | - | 464 | 100 | 530 | 430 | 300 | 30 | 16 | 272,0 | |
| 29420350 | 350 | 25 | 990 | - | 561 | 103 | 630 | 490 | 390 | 33 | 16 | 449,0 | |
| 29420400 | 400 | 25 | 990 | - | 560 | 103 | 630 | 550 | 390 | 33 | 16 | 617,0 | |
| 29420500 | 500 | 25 | 1017 | - | 664 | 104 | 820 | 650 | 500 | 39 | 20 | 962,0 |